Floor Plans

Home | Floor Plans

Browse Our curated Floor Plans

We’ve put together a collection of home designs to make getting started easy and inspiring. Each one can be personalized to fit your taste, needs, and lifestyle. If you don’t see exactly what you’re looking for, we’ll work with you to design a custom home made just for your property and vision as we design and build homes in a wide range of architectural styles, sizes, and budgets.

Augusta

 

  • First Floor Master
  • 3,411 SQ FT
  • 4 Bed
  • 3.5 Bath

Floor Plan Features:

  • Formal Dining Area & Cozy Breakfast Nook
  • Master Suite w/ Tiled Shower, Soaker Tup & Spacious Walk-In Closet
  • Main Floor Office/Library
  • Jack and Jill Bathroom
  • Upstairs Secondary Master Suite

Arlington

 

  • Ranch
  • 2,735 SQ FT
  • 3-4 Bed
  • 2.5 Bath

Floor Plan Features:

  • Spacious Master Suite
  • Cathedral Vaulted Kitchen & Dining Room w/Wood Beams
  • Office/Library/4th Bedroom
  • Closet Passthrough to Laundry for Convenience
  • Large Picturesque Windows

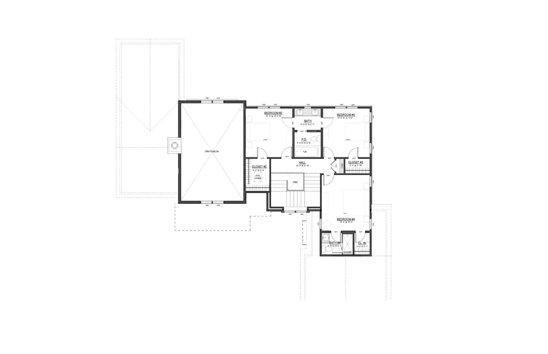
Ashton

 

  • Two Story
  • 3,751 SQ FT
  • 4 Bed
  • 3.5 Bath

Floor Plan Features:

  • Walk-In Pantry w/Prep Kitchen Option
  • Main Floor Office/Library
  • Large Upstairs Bonus Room
  • Jack and Jill Bathroom
  • Open Concept Great Room & Kitchen for Entertaining

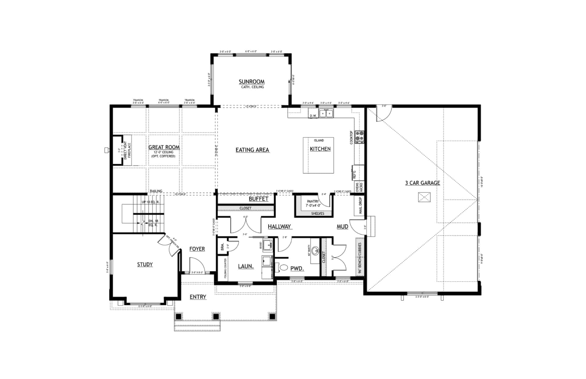
Westbrook

 

  • Two Story
  • 3,433 SQ FT
  • 4 Bed
  • 3.5 Bath

Floor Plan Features:

  • 12′ Great Room w/ Optional Coffered Ceiling
  • Vaulted Sunroom
  • Main Floor Office/Library
  • 3 Car Side Entry Garage
  • Open Concept Main Floor

Brightwood

 

  • First Floor Master
  • 2,768 SQ FT
  • 3-4 Bed
  • 2.5-3.5 Bath

Floor Plan Features:

  • Two Story Great Room
  • Alternate Prep/Scullery Kitchen Layout
  • Alternate Upstairs w/ Loft & 4th Bedroom
  • Convenient Passthrough to Laundry from Master Closet
  • Optional Covered Veanda

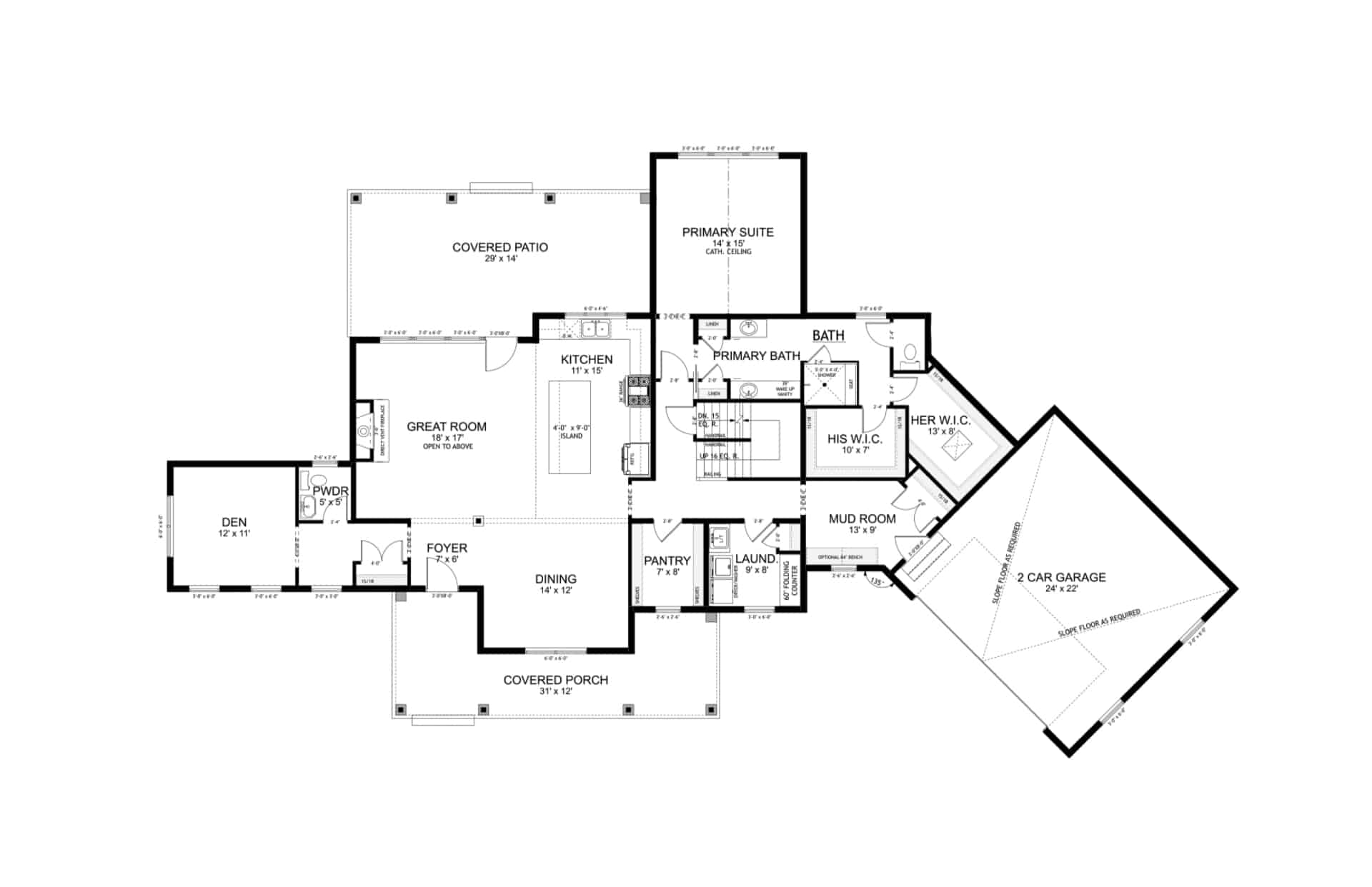
Lakeside

 

  • First Floor Master
  • 2,914 SQ FT
  • 4 Bed
  • 3.5 Bath

Floor Plan Features:

  • Spacious Master Suite
  • Main Floor Office/Library
  • Jack and Jill Bathroom
  • Open Concept Main Floor for Entertaining
  • 3 Car Side Entry Garage

Hampshire

 

  • First Floor Master
  • 2,822 SQ FT
  • 3 Bed
  • 2.5 Bath

Floor Plan Features:

  • Optional Bonus Room/4th Bedroom
  • Main Floor Office/Library
  • Twin Master Walk-In Closets
  • Jack and Jill Bathroom
  • Cozy Reading Nook

thompson

 

  • First Floor Master
  • 2,736 SQ FT
  • 3 Bed
  • 2.5 Bath

Floor Plan Features:

  • Optional BonusRoom/4thBedroom
  • Main Floor Office/Library
  • Twin Master WalkIn Closets
  • Two Story Great Room
  • Front & Rear Covered Porches

Surrey

 

  • Ranch
  • 1,872 SQ FT
  • 2 Bed
  • 2 Bath

Floor Plan Features:

  • Simple One Floor Open Concept Living
  • Main Floor Office/Library
  • Twin MasterWalkIn Closets
  • Vaulted Great Room & Master Bedroom
  • Alternate Main Floor Layout Available

Augusta

 

  • First Floor Master
  • 3,411 SQ FT
  • 4 Bed
  • 3.5 Bath

Floor Plan Features:

  • Formal Dining Area & Cozy Breakfast Nook
  • Master Suite w/ Tiled Shower, Soaker Tup & Spacious Walk-In Closet
  • Main Floor Office/Library
  • Jack and Jill Bathroom
  • Upstairs Secondary Master Suite

Arlington

 

  • Ranch
  • 2,735 SQ FT
  • 3-4 Bed
  • 2.5 Bath

Floor Plan Features:

  • Spacious Master Suite
  • Cathedral Vaulted Kitchen & Dining Room w/Wood Beams
  • Office/Library/4th Bedroom
  • Closet Passthrough to Laundry for Convenience
  • Large Picturesque Windows

Ashton

 

  • Two Story
  • 3,751 SQ FT
  • 4 Bed
  • 3.5 Bath

Floor Plan Features:

  • Walk-In Pantry w/Prep Kitchen Option
  • Main Floor Office/Library
  • Large Upstairs Bonus Room
  • Jack and Jill Bathroom
  • Open Concept Great Room & Kitchen for Entertaining

Westbrook

 

  • Two Story
  • 3,433 SQ FT
  • 4 Bed
  • 3.5 Bath

Floor Plan Features:

  • 12′ Great Room w/ Optional Coffered Ceiling
  • Vaulted Sunroom
  • Main Floor Office/Library
  • 3 Car Side Entry Garage
  • Open Concept Main Floor

Brightwood

 

  • First Floor Master
  • 2,768 SQ FT
  • 3-4 Bed
  • 2.5-3.5 Bath

Floor Plan Features:

  • Two Story Great Room
  • Alternate Prep/Scullery Kitchen Layout
  • Alternate Upstairs w/ Loft & 4th Bedroom
  • Convenient Passthrough to Laundry from Master Closet
  • Optional Covered Veanda

Lakeside

 

  • First Floor Master
  • 2,914 SQ FT
  • 4 Bed
  • 3.5 Bath

Floor Plan Features:

  • Spacious Master Suite
  • Main Floor Office/Library
  • Jack and Jill Bathroom
  • Open Concept Main Floor for Entertaining
  • 3 Car Side Entry Garage

Hampshire

 

  • First Floor Master
  • 2,822 SQ FT
  • 3 Bed
  • 2.5 Bath

Floor Plan Features:

  • Optional Bonus Room/4th Bedroom
  • Main Floor Office/Library
  • Twin Master Walk-In Closets
  • Jack and Jill Bathroom
  • Cozy Reading Nook

thompson

 

  • First Floor Master
  • 2,736 SQ FT
  • 3 Bed
  • 2.5 Bath

Floor Plan Features:

  • Optional BonusRoom/4thBedroom
  • Main Floor Office/Library
  • Twin Master WalkIn Closets
  • Two Story Great Room
  • Front & Rear Covered Porches

Surrey

 

  • Ranch
  • 1,872 SQ FT
  • 2 Bed
  • 2 Bath

Floor Plan Features:

  • Simple One Floor Open Concept Living
  • Main Floor Office/Library
  • Twin MasterWalkIn Closets
  • Vaulted Great Room & Master Bedroom
  • Alternate Main Floor Layout Available

Discuss Curated Floor Plans

We’re here to support you in finding the right home. Reach out to our friendly team with any questions. Let us assist you in making your dream of owning a custom home a reality.